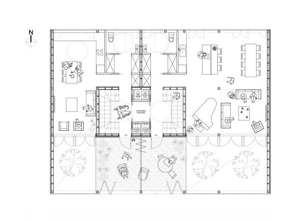
Maisons jumelles et espaces mutualisés
thème
« Betwin », l’habitat de demain
lieu
non défini
surface
300 m²
concours d’idées
avril 2008 en partenariat avec M.Peillet et F.Hermenier
concept
les maisons [ONE)2(ONE] répondent aux enjeux de densité urbaine, de mixité, sociale et d’économie d’énergie. Concues comme une unité d’ensemble, elles se déploient à l’intérieur d’une enveloppe écologique unique. Celle-ci rentabilise le volume de la parcelle et crée des espaces de partage les maisons.Ces maisons offrent des espaces mutualisables ou permutable pour l’une ou l’autre maison. Elles sont évolutives pour s’adapter au fonctionnement des usagers.








