MND
programme
réhabilitation d’une grande rurale
lieu
Elven (56)
surface
300 m2
études
2010-2012
concept
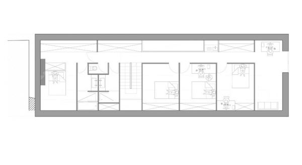
plan libre de l’habitat avec séparation transversale des fonctions par le mobilier La réhabilitation de cette ancienne grange consiste à créer une maison familiale avec les espaces de vie à rez-de-chaussée et les espaces de nuit à l’étage avec la création d’un plancher en béton partiellement ouvert pour la connection entre les deux niveaux. Le corps de bâti longiligne suggère la nécessité de créer de longues circulations vouées à des « entres » fonctionnels tels que des rangements, escalier, point d’eau, coin lecture.
en cours de travaux
en partenariat avec Laurent Soler











